NOVA SAN ANGEL
Proyecto Arquitectónico: MRD
Equipo: Antonio Morodo Diaz, Sergio Macotela Baca, Manuel Alvarez Rubio, Juan Carlos Aguirre Lobato, J. Alberto Hernández Natividad, Dina Méndez Collins, Roberto Villaseñor, Nadia Galvan.
Estatus: Proyecto
Año: 2017 -2018
Proyecto de interiores: José María Gaona Cruz, Constanza Carrillo Romero, Diego López Reyes, Sharon Fainstein, Juan Pablo Calzada, Roberto Valdez Uriza, Isaac Molina
Proyecto de Paisaje: ENTORNO
Proyecto Estructural: Grupo CT
Proyecto de Ingenierías: AYESA
Proyecto de Acústica: SAAD Acustica
Proyecto de Iluminación: NORIEGGA Iluminadores
Proyecto de Cancelería: FED, ALUVISA
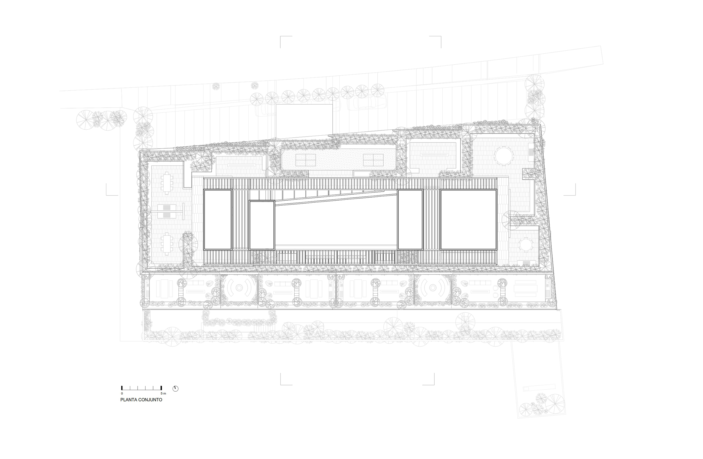
Área Construida: 34,500 m2
Ubicación: Los Alpes, CDMX, México.
Visualizaciones: Alonso Rosales y Vizstudio
Una torre ubicada en una contrastante y polémica zona con frente en la lateral de periférico y el segundo piso, un costado a una cerrada bastante tranquila de vocación residencial y la fachada posterior con cara en dirección hacia San Angel de igual manera un frente pacifico de baja densidad y altura.
Un concepto de cuestionarnos y mejorar la calidad de vida en estos proyectos multifamiliares verticales a través del diseño, sus espacios y la calidad de experiencias a generar dentro del mismo.
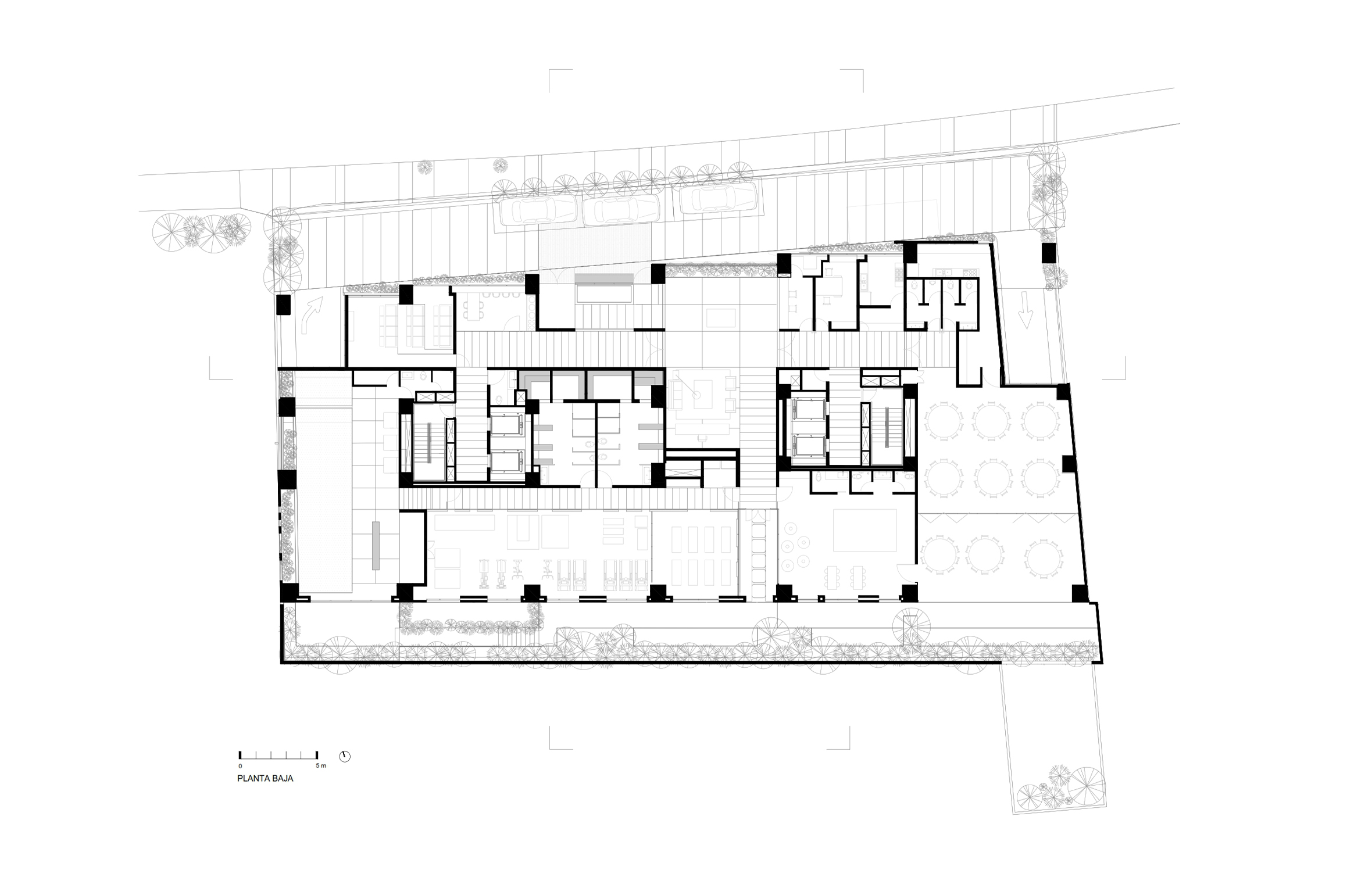
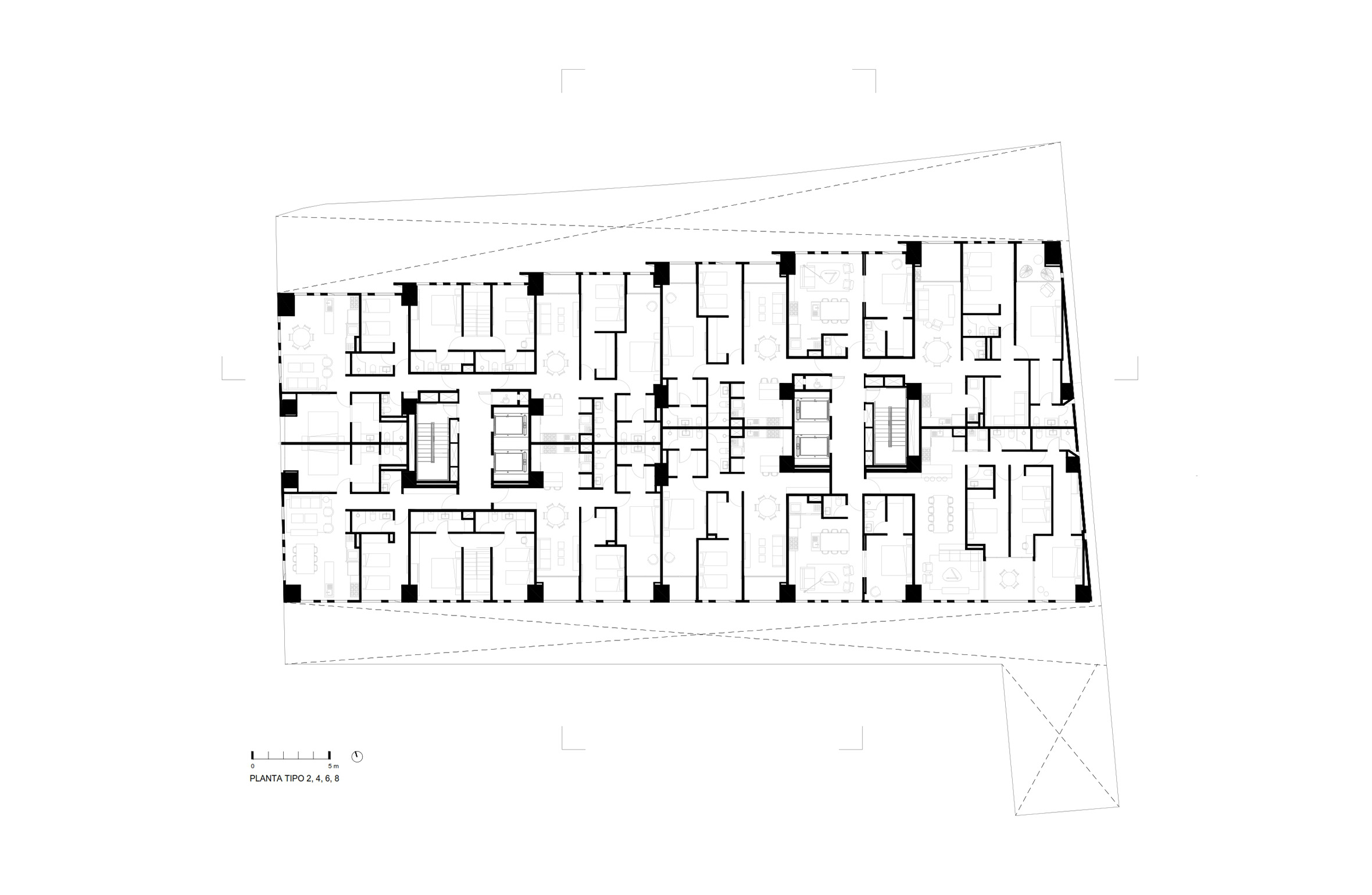
En su programa se ubican la PB y azotea como espacios comunes de recreación y conexión promoviendo áreas colectivas recreativas, de deporte y bienestar. El jardín y el paisaje como protagonistas en ambos niveles.
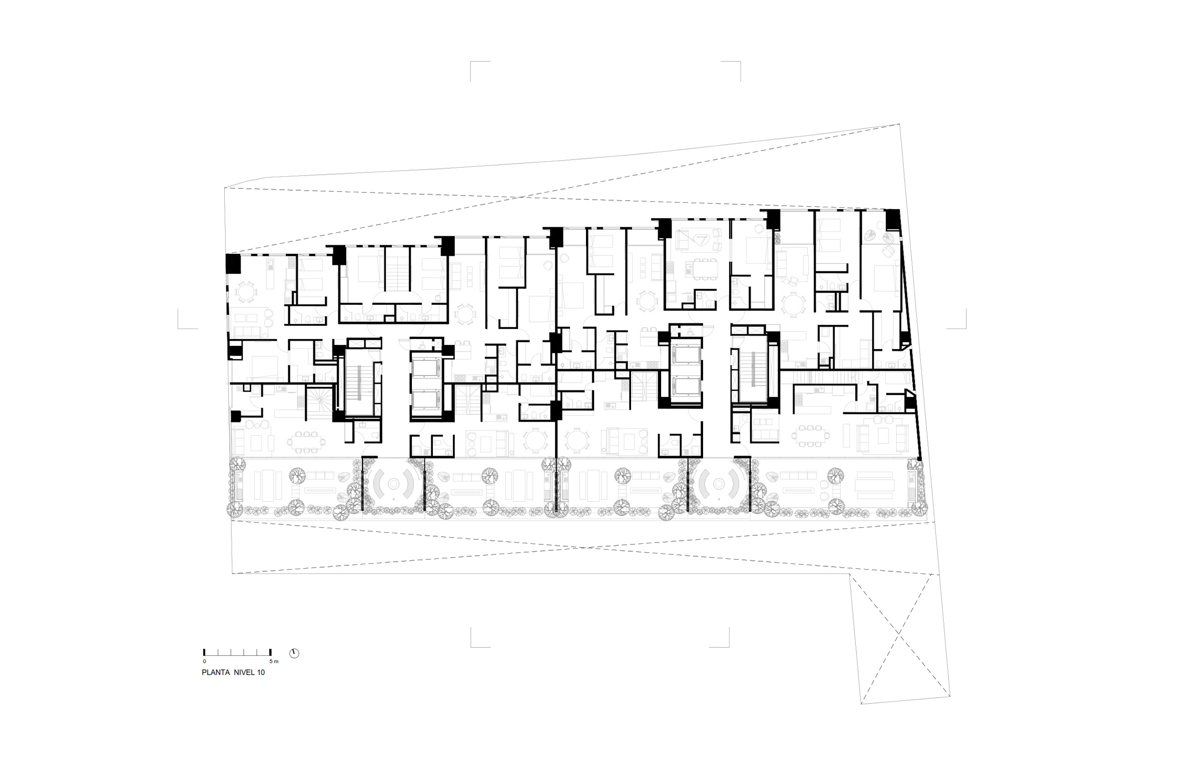
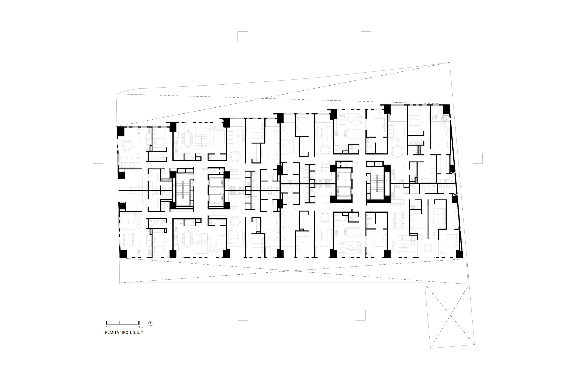
En cuanto a los niveles de vivienda se conformaron prototipos desde 50 hasta 150m2 generando una oferta variada desde 1,2 y recamaras, unidades con amplias terrazas balcones hasta algunas otras más compactas e introspectivas.
Las áreas comunes tienen clara función de ser extensiones de sus hogares ofreciendo amplitud y variedad de funciones que en su espacio privado tal vez no pueden tener.
La arquitectura resalta una fachada contenida y sólida recubierta en paneles prefabricados de concreto en tonos tierra mientras que la fachada de san ángel a partir del Nivel 11 pasa a ser una fachada mucho más ligera y abierta que permea sus vistas y apertura hacia la colonia de San Angel.



